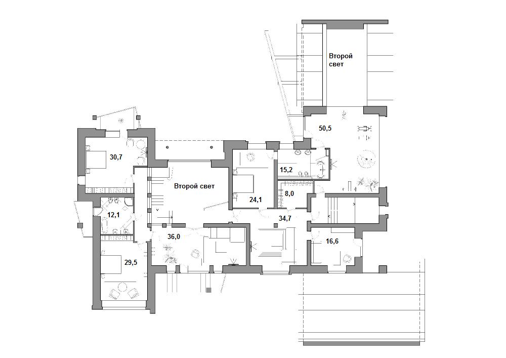
План 2 этажа