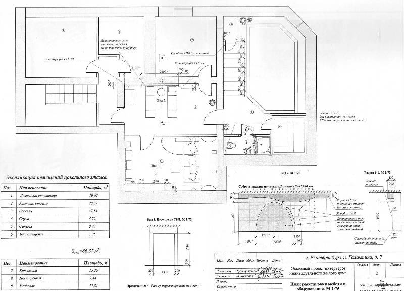
План цоколя