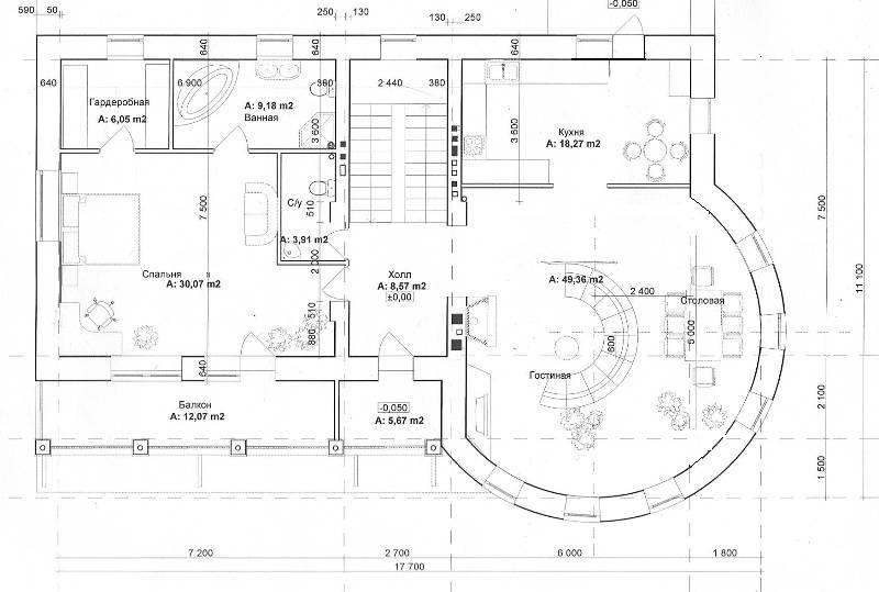
План первого этажа (перегородки можно изменить)