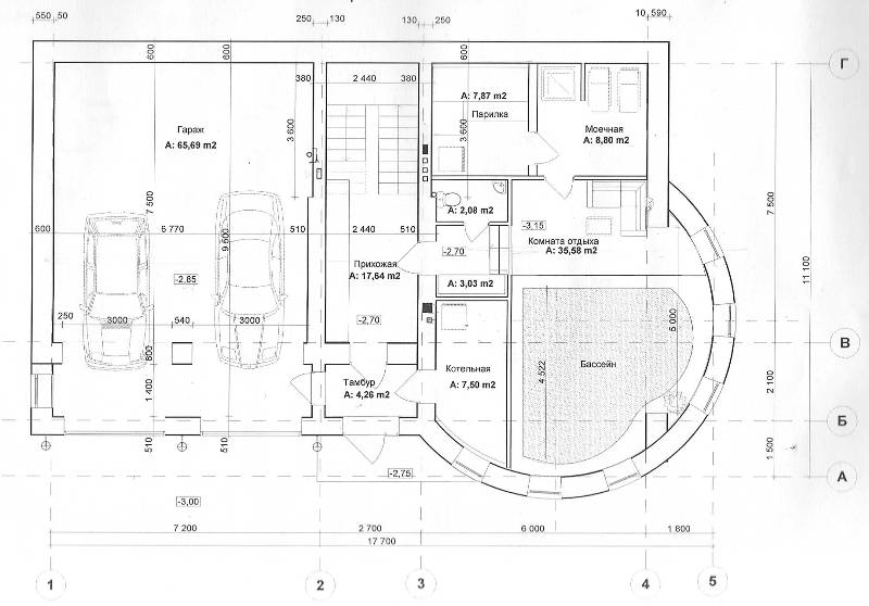
План цокольного этажа (перегородки можно изменить)